Est build cost
The brief
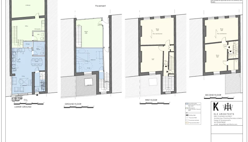
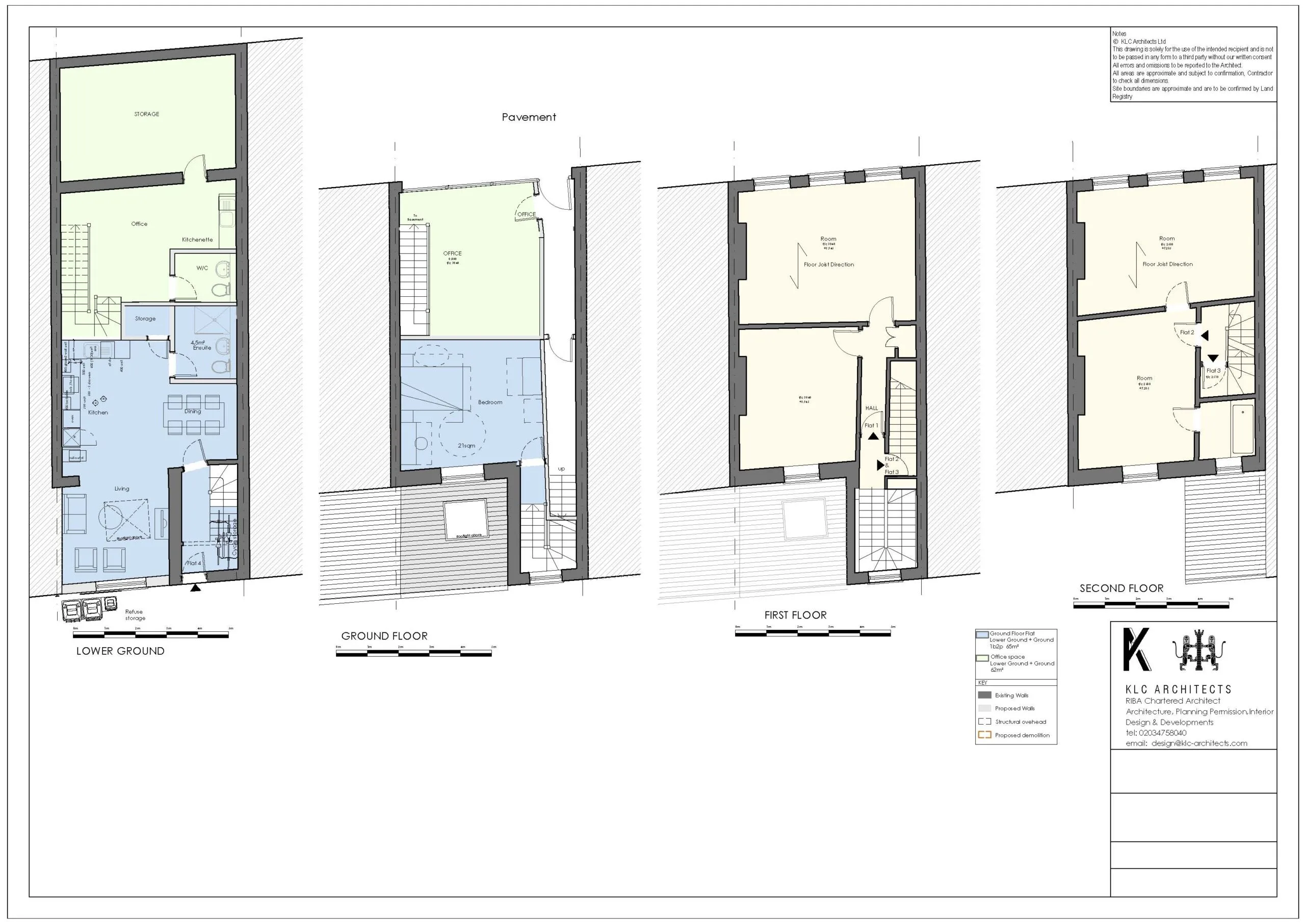
The Ground and Lower Ground floor was formally a taxi service business and an application for change of use to residential has been submitted. The developers wanted to explore extending the property to include a rear extension basement to make a spacious kitchen to sell to the market.
The challenge
The outcome
Currently awating planning decision
Book A Design Session With Us
Talk to us about your residential project and how we can help you, call us now on 020 3475 8040 or email us
Streatham High Road SW16
BASEMENT EXTENSION TO LOWER GROUND FLAT, ELEPHANT AND CASTLE, LONDON




